このページを印刷する
- 価格
-
2,199万円
- 間取
-
2LDK
- 管理費等
- 9,650円
| 所在地 | 沖縄県南城市佐敷字津波古 |
|---|---|
| 建物名 | ニューライフ佐敷 |
| 交通 |
|
| 特徴 |
| 築年月 | 1993年10月(築32年3ヶ月) | 新築/中古 | 中古 |
|---|---|---|---|
| 面積 | 73.71m²(22.29坪) | 計測方式 | |
| バルコニー | 13.05m²(3.94坪) | 向き | 南東 |
| 建物階数 | 地上6階 | 所在階 | 5階 |
| 部屋番号/区画番号 | 505 | 総戸数/総区画数 | 全20戸 |
| 建物構造 | RC | ||
| 管理形態 | 全部委託管理人無 | ||
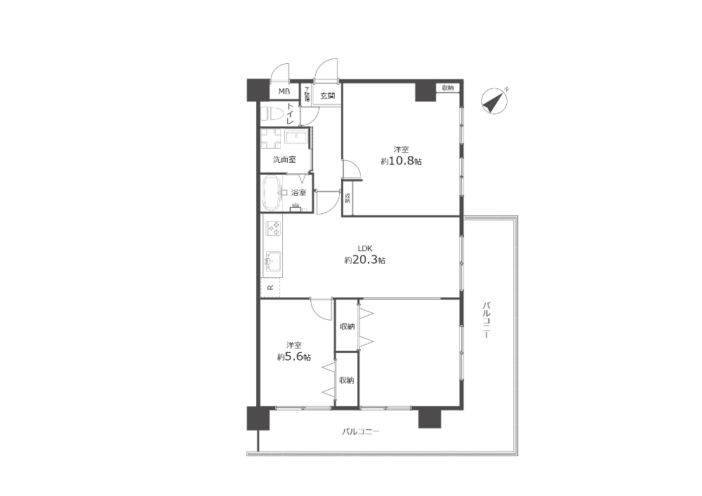
| 間取内容 | LDK20.3帖 洋室10.8帖 洋室5.6帖 | ||
| 住宅保険料 | 修繕積立金 | 11,800円 | |
| 駐車場 | 2,000円空有 ・2,000〜5,000円/月 ・近隣月額(2,000円/月) |
取引態様 | 仲介 |
| 引渡/入居時期 | 相談 | 現況 | 空家 |
| 地目 | 用途地域 | 第一種住居 | |
| 土地権利 | 所有権 | 接道状況 | |
| 周辺環境 | 【学区】 ・南城市立馬天小学校まで徒歩約13分(900m) ・南城市立佐敷中学校まで徒歩約29分(2100m) 【買い物施設など】 ・ファミリーマート 南城馬天入口店まで徒歩約5分(350m) ・ダイレックス 佐敷店まで徒歩約11分(750m) ・ザ・ビッグエクスプレス佐敷店まで徒歩約11分(800m) |
||
| 設備・条件 |
【新規交換】システムキッチン、浴室乾燥機、ユニットバス、洗面化粧台、温水洗浄機能付きトイレ、洗濯機防水パン、建具、クッションフロア張替え、クロス張替え、ダウンライト設置、ガス給湯器、フローリング張替え、カーテンレール、(2025年10月完了予定)
|
||
| 学区 | |||
| 物件カテゴリー | |||
| 自社物 | 先物 | 状態 | 売出中 |
| 物件番号 | LM260003 | 掲載期限日 | 2026年2月2日 |
| 情報登録日 | 2026年1月8日 | 情報更新日 | 2026年1月19日 |
物件掲載内容と現況に相違がある場合は現況を優先といたします。
物件周辺マップ
ご注意
- 物件によっては正確な位置を示していない場合がございます。
- 現況が表示された内容と異なる場合は現況優先といたします。
- 表示されてる地図はOpenStreetMapより提供されてるデータに基づいたものであり、表示内容についての責任は負いかねます。































