沖縄本島の不動産売買・リノベーションのことならリンクスホーム

リンクスホーム

営業時間10:00~18:00

定休日毎週日曜日

お問い合わせ

物件一覧

リフォーム済み物件

  • NEW中古戸建【うるま市勝連南風原の戸建て】約132㎡の広々5LDK角地の一戸建て!並列3台駐車可能!ルーフバルコニー付き!防水塗装済み!

    5LDK

    建物132.84m² 土地281.25m²

    築年月1989

    うるま市勝連南風原売戸建

    沖縄県うるま市勝連南風原

    • バス田佐原距離100m徒歩2分

    価格3,600

    • 建物外観外観
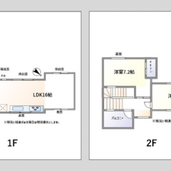
    • 平面図間取
    • LDK(約21.0帖)内装
    • LDK(約21.0帖)内装
    • LDK(約21.0帖)内装
    間取り面積築年月構造
    5LDK建物132.84m² 土地281.25m² 1989RCB(鉄筋コンクリートブロック造)
  • 更新中古マンション【ソーワピア古蔵台】2000万円台のリフォーム済み2LDK角部屋!ペット可能!近隣駐車場あり!

    2LDK

    69.03m²

    築年月1986年3月(築39年)

    ソーワピア古蔵台

    沖縄県那覇市古波蔵1丁目

    • バス古蔵中学校前距離650m徒歩10分

    価格2,190

    管理費等6,070

    • マンション外観外観
    • リフォーム後の平面図間取
    • 画像準備中
    • 画像準備中
    • 画像準備中
    間取り専有面積築年月構造
    2LDK69.03m² 1986年3月(築39年)RC
  • 更新中古マンション【エンゼルハイム普天間】普天間学区徒歩圏内の3LDK角部屋!再開発中の西普天間近辺所在!駐車場2台確保可能!

    3LDK

    70.74m²

    築年月1996年1月(築30年)

    エンゼルハイム普天間

    沖縄県宜野湾市新城2丁目

    • バス新城距離300m徒歩4分

    価格3,190

    管理費等9,630

    • マンション外観
    • リフォーム後の平面図間取
    • 画像準備中
    • 画像準備中
    • 画像準備中
    間取り専有面積築年月構造
    3LDK70.74m² 1996年1月(築30年)RC
  • 更新中古マンション【ライオンズマンションたから】2000万円台のリフォーム済み2LDK物件!令和6年大規模修繕済みで内外一新!

    2LDK

    58.84m²

    築年月1989年6月(築36年)

    ライオンズマンションたから

    沖縄県那覇市高良2丁目

    • 沖縄都市モノレール赤嶺駅距離1200m徒歩17分
    • バス高良距離230m徒歩3分

    価格2,390

    管理費等11,600

    • マンション外観外観
    • リフォーム後の平面図間取
    • LDK(約12.6帖)内装
    • LDK(約12.6帖)内装
    • 新しく交換したシステムキッチンキッチン
    間取り専有面積築年月構造
    2LDK58.84m² 1989年6月(築36年)RC
  • 更新中古マンション【ラフィーネ大平】約80㎡の広々3LDKリフォーム済み角部屋!330通りまでアクセス良好!

    3LDK

    80.2m²

    築年月1993年3月(築32年)

    ラフィーネ大平

    沖縄県浦添市大平

    • バス陽明高校前距離400m徒歩5分

    価格2,990

    管理費等12,100

    • マンション外観
    • リフォーム後の平面図間取
    • LDK(約15.8帖)内装
    • LDK(約15.8帖)内装
    • 新しく交換したシステムキッチンキッチン
    間取り専有面積築年月構造
    3LDK80.2m² 1993年3月(築32年)RC
  • 更新中古マンション【プレミスト宜野湾大謝名】ラグジュアリーな永住設計の大規模マンション!棟内+近隣月極引継ぎで2台駐車可能!

    2LDK

    68.88m²

    築年月2018年4月(築7年)

    プレミスト宜野湾大謝名

    沖縄県宜野湾市大謝名1丁目

    • バス大謝名距離280m徒歩4分

    価格4,199

    管理費等12,400

    • マンション外観外観
    • 平面図間取
    • LDK(約15.9帖)内装
    • LDK(約15.9帖)内装
    • LDK(約15.9帖)内装
    間取り専有面積築年月構造
    2LDK68.88m² 2018年4月(築7年)RC
  • 更新中古マンション【ウィングシャトー那覇リバーガーデン】広々85㎡の角部屋3LDKリフォーム物件!オール電化!駐車場2台無料!

    3LDK

    89.33m²

    築年月2008年3月(築17年)

    ウィングシャトー那覇リバーガーデン

    沖縄県那覇市古波蔵3丁目

    • 沖縄都市モノレール壺川駅距離850m徒歩12分
    • バス大橋(小禄向け)距離300m徒歩4分

    価格4,590

    管理費等9,000

    • マンション外観外観
    • リフォーム後の平面図間取
    • LDK(約23.1帖)内装
    • 新しく交換したシステムキッチンキッチン
    • 新しく交換したシステムキッチンキッチン
    間取り専有面積築年月構造
    3LDK89.33m² 2008年3月(築17年)RC
  • 更新中古マンション【ライオンズマンション大文閣】松山エリアの2LDKリフォーム済み角部屋!9階の眺望あり!

    2LDK

    67.89m²

    築年月1985年1月(築41年)

    ライオンズマンション大文閣

    沖縄県那覇市松山1丁目

    • 沖縄都市モノレール県庁前駅距離550m徒歩9分
    • バス沖縄タイムス前距離180m徒歩2分

    価格2,999

    管理費等16,400

    • マンション外観外観
    • リフォーム後の平面図間取
    • LDK(約18.3帖)内装
    • LDK(約18.3帖)洋室
    • LDK(約18.3帖)内装
    間取り専有面積築年月構造
    2LDK67.89m² 1985年1月(築41年)RC
  • 更新中古マンション【ニューライフ佐敷】73㎡の広々角部屋リフォーム済物件!二面バルコニーのオーシャンビュー

    2LDK

    73.71m²

    築年月1993年10月(築32年)

    ニューライフ佐敷

    沖縄県南城市佐敷字津波古

    • バス馬天距離300m徒歩4分

    価格2,199

    管理費等9,650

    • マンション外観外観
    • リフォーム後の平面図間取
    • LDK(約20.3帖)内装
    • LDK(約20.3帖)内装
    • LDK(約20.3帖)内装
    間取り専有面積築年月構造
    2LDK73.71m² 1993年10月(築32年)RC
  • 更新中古マンション【高橋マンション(前島)】美栄橋駅徒歩圏のリフォーム済み1ルーム!陽当たり良好!ペット可能!

    1R

    44.01m²

    築年月1984年6月(築41年)

    高橋マンシヨン(前島)

    沖縄県那覇市前島2丁目

    • 沖縄都市モノレール美栄橋駅距離300m徒歩5分
    • バス美栄橋駅前距離300m徒歩4分

    価格1,999

    管理費等7,500

    • マンション外観外観
    • リフォーム後の平面図間取
    • LDK(約22.5帖)内装
    • LDK(約22.5帖)内装
    • LDK(約22.5帖)内装
    間取り専有面積築年月構造
    1R44.01m² 1984年6月(築41年)RC